Villa Crespo
En construcción

Exclusivos pisos de 1, 2 y 3 ambientes con cocheras en edificio residencial de 10 plantas con amenities.

Gurruchaga 180 cuenta con 8 plantas de unidades y amenities de calidad premium en el 9° y 10° piso.

El edificio

  • 8 plantas de unidades
  • Balcón terraza
  • Sum con parrilla
  • Unidades de 1, 2 y 3 ambientes
  • Amenities en el 9° y 10° piso
  • Piscina
  • Cocheras propias
  • Espacio de coworking
  • Solarium

Amenities de calidad ubicadas en el 9° y 10° piso, incluyendo una piscina, solarium, sum con parrilla y espacio de coworking.

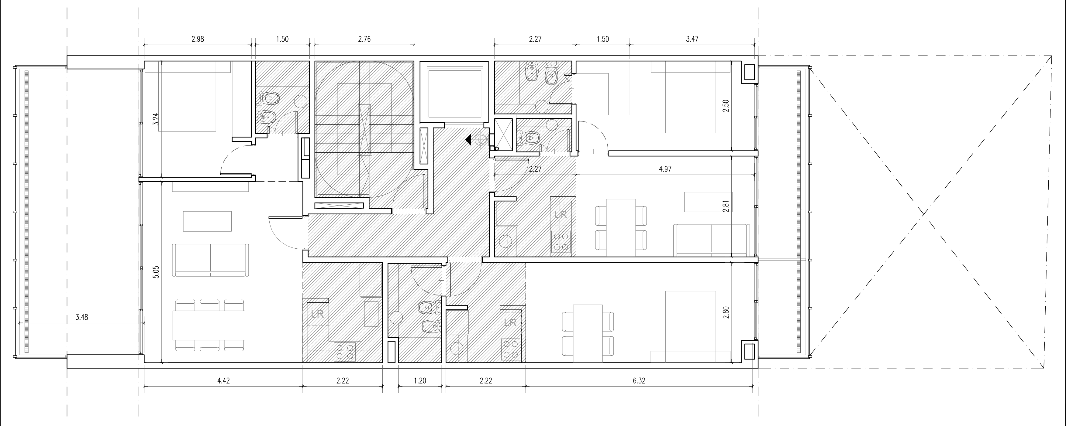
Departamentos de

116-129 m2

Planta baja Departamento A Departamento 8 Departamento B Departamento C Piso 1-7 Piso 8 Piso 9 Azotea

Las medidas y superficies de los planos son meramente orientativos.

Ubicación ideal en Villa Crespo

El equipo

  • Desarrollo

    Bertolotti Desarrolladora

  • Comercialización

    Bertolotti Inmobiliaria

  • Proyecto y Dirección

    CHTY Arquitectos

Para mas información del proyecto,
descargá nuestro brochure.

Descargar

Explorá otros proyectos