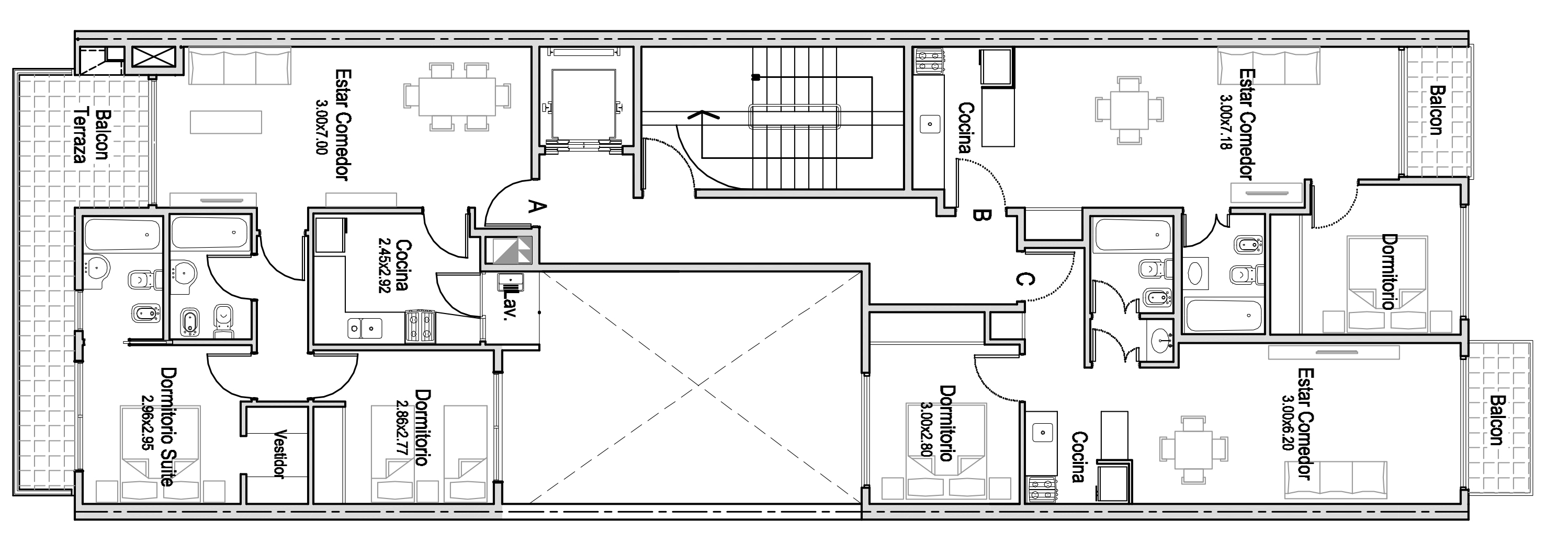
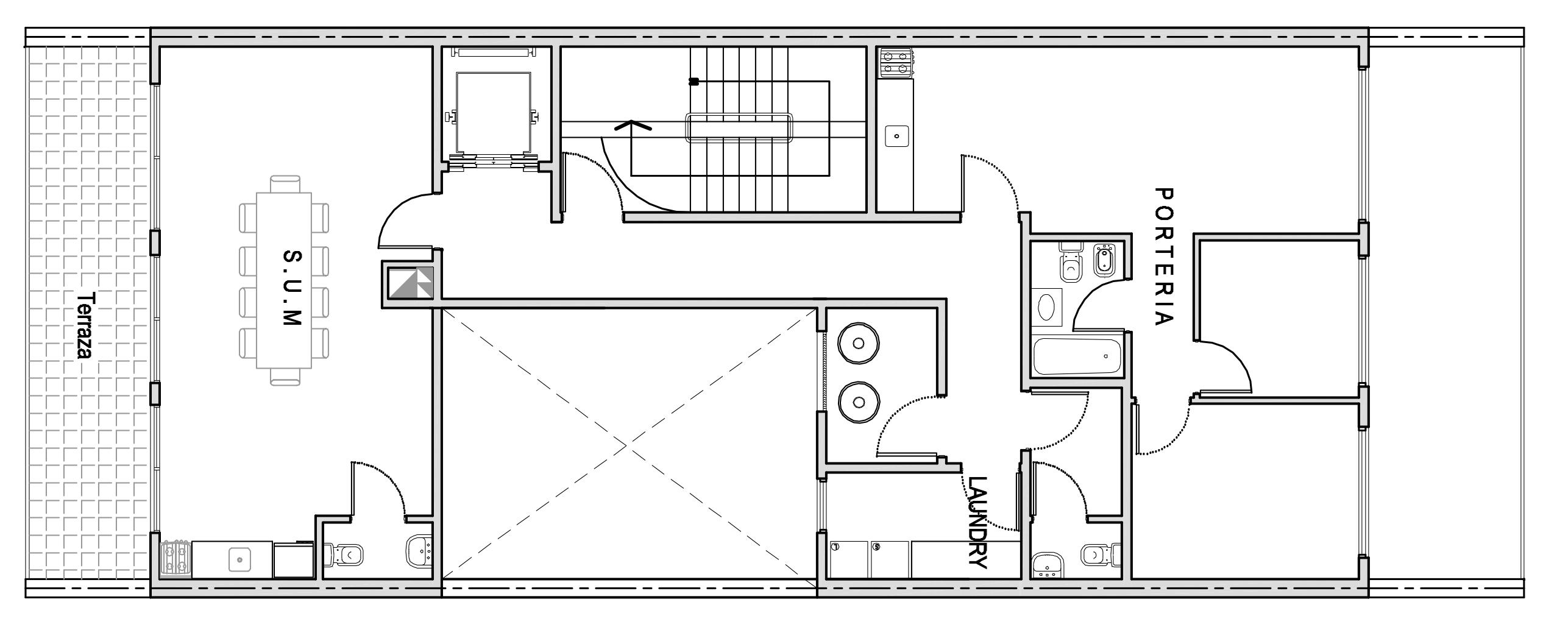
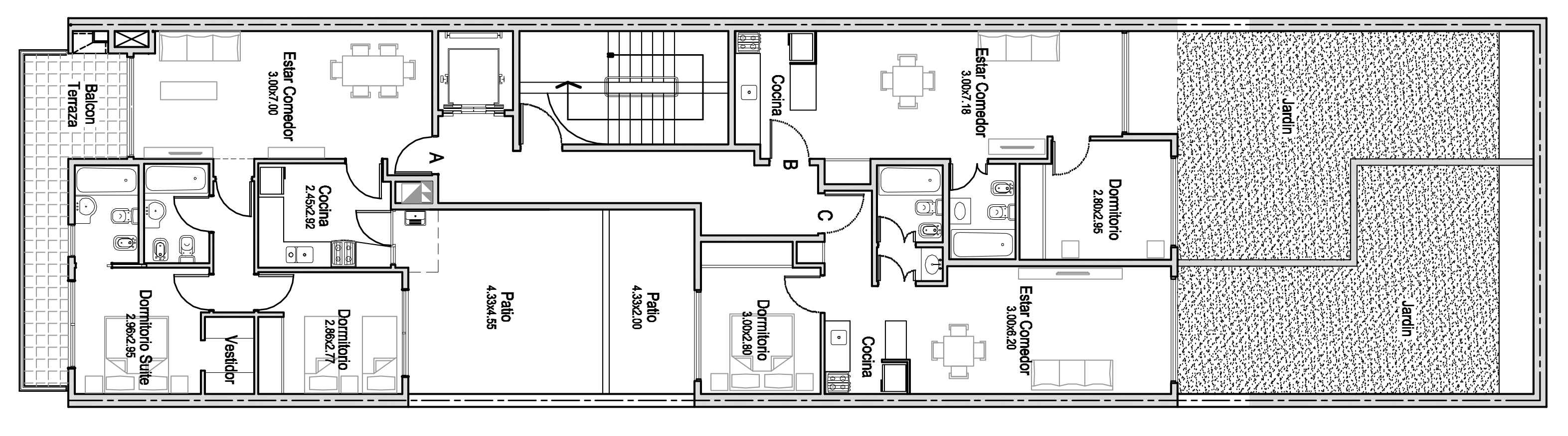
Las medidas y superficies de los planos son meramente orientativos.
Villa Crespo
En construcción
Terminado